Festpreisangebote - die Details

Hallenbau 01

Hallenbau Festpreisangebot: 187.539,--€.

Willkommen in der aufregenden Welt unserer kreativen Teamkraft! Wir sind voller Vorfreude darauf, mit Ihnen in die Details einzutauchen und ein maßgeschneidertes Festpreisangebot zu erstellen, das all Ihre Wünsche und Träume für Ihre Traumhalle in die Realität umsetzt. Ihre Vision ist unser Antrieb, und Wir können es kaum erwarten, gemeinsam mit Ihnen eine atemberaubende Wirklichkeit zu erschaffen!

Vergessen Sie nicht: Die Zeit ist jetzt gekommen, um den ersten Schritt in Richtung Ihrer unvergesslichen Wunschhalle zu machen! Zögern Sie nicht länger und nehmen Sie noch heute Kontakt mit uns auf. Unser Team steht Ihnen mit geballter Kreativität und Fachwissen zur Seite, um Ihre Veranstaltung oder Ihre Feierlichkeit zu einem unvergesslichen Erlebnis zu machen. Lassen Sie uns gemeinsam Ihre Veranstaltung zu einem Meisterwerk der Eleganz und Exzellenz machen. Warum warten? Ihre Traumhalle wartet darauf, von uns zum Leben erweckt zu werden!“

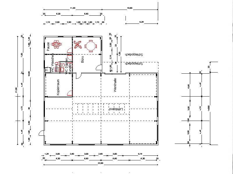
Produktionshalle:

Länge: 25 m
Breite: 14 m
Traufe: 4,50 m über Hallenboden

Anbau:

Länge: 10 m
Breite: 9 m
Traufe: 3,87 m über Hallenboden
Dachform: Satteldach
Dachneigung: 10°
Vordach: 15 x 2 m

Unser Festpreisangebot beträgt 187.539,--€ und umfasst auch die Montage und Erstellung der Konstruktionspläne.

Bitte beachten Sie, dass die Feuerschutzbeschichtung des Stahls von den Vorgaben der jeweiligen Behörde abhängig sein kann.

Wir sind stolz darauf, Ihnen unsere Dienstleistungen in den folgenden Bundesländern anzubieten:

Bayern, Niedersachsen, Baden-Württemberg, Nordrhein-Westfalen, Brandenburg, Mecklenburg-Vorpommern, Hessen, Sachsen-Anhalt, Rheinland-Pfalz, Sachsen, Thüringen, Schleswig-Holstein, Saarland, Berlin, Hamburg, Bremen.

Unser Team steht Ihnen gerne zur Verfügung, um weitere Details zu besprechen und Ihr individuelles Festpreisangebot zu erstellen. Kontaktieren Sie uns noch heute, um Ihre Wunschhalle zu verwirklichen!

 

 

 

Zurück